Hajdú-Bihar megye, Hajdúszoboszló


 

Hivatkozási szám: 3122458

Ingatlan adatai

Irányár: 78 000 000 Ft
Típus: lakás (újépítésű)
Kategória: eladó
Alapterület: 61 m2
Fűtés: -
Állapota: új
Szobák száma: 2
Építés éve: 2024
Szintek száma: -

Részletes leírás

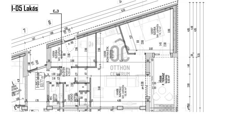
Ez az ingatlan hirdetés kifejezetten befektetők számára készült, akik olyan különleges lehetőséget keresnek, amely nemcsak lakóhelyet, hanem értékálló befektetést is jelent. Bemutatjuk neked ezt az új, első emeleti prémium kivitelezésű lakást, amely 60,77 nm alapterületű, és két tágas szobával rendelkezik. Az ingatlan ideális választás lehet akár saját otthonodnak, akár bérbeadásra szánt befektetésnek. A lakásban egy modern amerikai konyha található, amely a tágas nappalival egy légtérben helyezkedik el, így a közös pillanatok még élvezetesebbé válhatnak. A fürdőszoba egyedi tervezésű, és minden igényt kielégít, a terasz 9,55 nm-es, ami lehetőséget ad arra, hogy a szabadban is élvezhesd a napfényes pillanatokat. A lakás panorámás kilátása igazi különlegességet jelent, hogy a természet közelségét is élvezd. A fürdő közelsége miatt, ideális választás családok számára, de a befektetők is megtalálják a számításaikat. Az ingatlan környékén számos bolt, étterem és szórakozási lehetőség vár rád, ami még vonzóbbá teszi a lakóhelyet. A megújuló fűtésrendszer nemcsak környezetbarát megoldás, hanem hosszú távon jelentős költségmegtakarítást is biztosít. A kiváló minőségű anyagok és a prémium kivitelezés garantálja, hogy ez a lakás nemcsak otthon, hanem egy értékálló befektetés is lesz számodra. Ha felkeltette az érdeklődésedet ez az exkluzív ingatlan, ne habozz kérdezni! Szívesen válaszolok minden kérdésedre, és segítek, hogy megtaláld a számodra legmegfelelőbb megoldást. Az ingatlanpiac dinamikusan változik, és ez a lehetőség nem tart örökké. Bízz bennem, és tedd meg az első lépést a jövőd felé!Projekt bemutatásaA GLÓBIUSZ PREMIUM RESIDENCE 45 lakást, valamint 45 gépkocsi beállót magába foglaló, vegyes rendeltetésű épület, amely Magyarországegyik legnépszerűbb üdülőhelyén, Hajdúszoboszlón és annak is a legjobbnak tartott környékén fog megépülni. Ahonnan a hűvös-lágy fehérbortól gyöngyöző poharakat szorongatva a Csónakázótó szélesvásznú panorámája hozza majd romantikus hangulatba a ház tágas teraszain ejtőzőket. Mindezt Európa legnagyobb fürdőkomplexumának a szomszédságában, aminek minősített gyógyvize 1925 óta vonzza ide a kontinens termálvíz kedvelőit. Ami által infrastruktúrája (közlekedés, oktatás, egészségügy, közműhálózat, sport) és a legkülönbözőbb szolgáltatások széles választéka, Hajdúszoboszlót kimagaslóvá teszik ma Magyarországon.Azért tartjuk ideális döntésnek az extravagáns megjelenés és a magas műszaki tartalom kombinációját, mert így tudunk igazán hozzáadni szeretett városunk fényéhez.

További adatok

Telekterület: -
Kert mérete: -
Erkély mérete: 10 m2
Felszereltség: -
Parkolás: -
Kilátás: utcai
Egyéb extrák:  
-

Hirdető adatai

Hirdető neve: Otthon Centrum
Kapcsolattartó: Nagy Ádám
Hirdető telefonszáma: +36 70 469 3411
Honlap: -

Üzenetet küldhet a hirdetőnek:
Az Ön neve:
Az Ön e-mail címe:
Üzenet: