Budapest, VI.kerület


 

Hivatkozási szám: 3118396

Ingatlan adatai

Irányár: 195 282 000 Ft
Típus: lakás (újépítésű)
Kategória: eladó
Alapterület: 91 m2
Fűtés: -
Állapota: új
Szobák száma: 3
Építés éve: 2024
Szintek száma: -

Részletes leírás

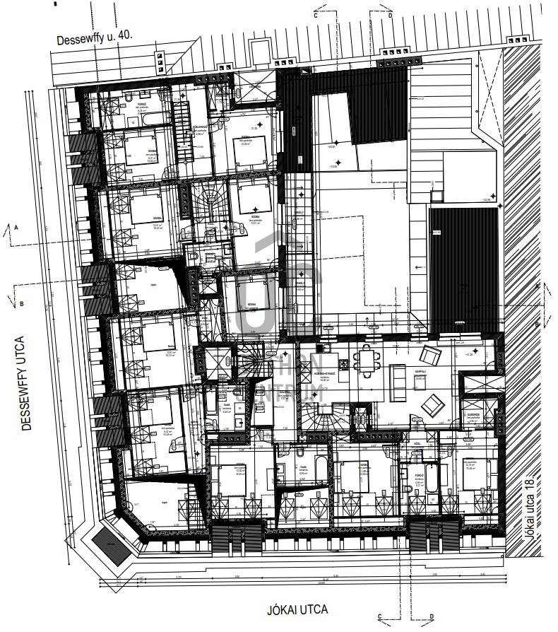
Most induló emeletráépítéssel és tetőtérbeépítéssel megvalósuló 7 lakásos projekt keretében kínálok eladásra Budapest VI. kerületében (Belső-Erzsébetváros) a Jókai utca és a Dessewffy utca saroképület tetején egy minden igényt kielégítő nappali+2 hálószobás, 91 nm-es, nagy teraszos (26,34 nm), duplex lakást.A tervezés során elsődleges szempont volt, hogy minden nappali és a szobák nagy része teraszkapcsolattal is rendelkezzenek, ezzel jelentősen nyitottak legyenek a külvilágra, így fényes, szellős és tágas terek alakuljanak ki, nagy nyílászárókkal, jelentős üvegfelületekkel rendelkeznek. Levegő-víz rendszerű hőszivattyús hűtés-fűtés rendszerrel kerülnek beépítésre, amelyhez külön geo-tarifás mérőórát biztosít az áramszolgáltató, így az elektromos energia ára 20-30% kedvezőbb az általános lakossági tarifáknál.A fejlesztésünk során elkészül a ház felújítása is, amely érinti a külső-belső homlokzatokat, nyílászárókat, az elektromos hálózatot, a közmű-bekötéseket. Az épületbe modern lift kerül beépítésre.A két világháború között, a ’20-as években épült nagypolgári épület a Jókai - Dessewffy utca sarkán található, a nyüzsgő budapesti belváros szívében, a Liszt Ferenc tér közvetlen közelében, egy háztömbnyire a Teréz körúttól, a VI. kerületi Bajcsy-Zsilinszky - Andrássy út - Teréz körút által határolt Belső-Terézváros legfrekventáltabb részén.Az épület Budapest egyik leginkább városias-belvárosias szövetének része, ennek megfelelően a környéken, mind a kereskedelem, mind a szórakozási-kulturális lehetőségek, mind az oktatás intézmények szinte minden spektruma rövid sétatávolságon belül megtalálható.Tömegközlekedési eszközökkel is jól megközelíthető, a pesti városrész nevezetességei (Opera, Bazilika), és méltán egyre népszerűbb szórakozóhelyei, éttermei, romkocsmái, akár gyalog is elérhetőek. A közelben jár a 4-es 6-os villamos, de a 3-as metró Nyugati téri állomásához, és az Oktogonnál lévő 1-es metróhelyéhez is néhány perces sétával el lehet jutni.A lakások kivitelezője 18 év tapasztalattal rendelkezik tetőterek tervezésében és kivitelezésében, a tetőterek és a Belváros szerelmese, hiszen egyszerre alkot újat és őrzi meg a régit. Tradicionális környezetben teremt - a luxus minden elemével rendelkező - modern otthonokat.Ne szalassza el ezt a kiváló lehetőséget, várom megtisztelő hívását!Egyedi igényekre szabott lakáshitelekkel állunk rendelkezésére.Bankfüggetlen hitelcentrumunk az országban elérhető összes bank és hitelintézet ajánlatát versenyezteti az Ön számára díjmentesen.Munkatársaink nagy szakmai tapasztalattal várják Önt az előre egyeztetett időpontban akár a normál munkaidő után is.Projekt bemutatásaKétszintes tetőtérbeépítés és emeletráépítés keretében 7 db egy- illetve belső kétszintes, változatos méretű (nettó 32 - 130 nm-es) és elosztású (stúdió, nappali + 2, 3 hálószobás), nagy teraszos, utcai nézetű luxus lakást kínálok eladásra a Jókai és az Dessewffy utca saroképületén.Minden lakó- és pihenő igényt kielégítő modern, a szabványoknak megfelelő, vagy azt meghaladó méretű, funkciójú igény és minőségi szintű helyiségekkel, illetve innovatív építészeti megoldásokkal kerültek megtervezésre.Elsődleges szempont volt, hogy minden nappali és a szobák nagy része, illetve az emeleten található szobák teraszkapcsolattal is rendelkezzenek, ezzel jelentősen nyitottak legyenek a külvilágra, így fényes, szellős és tágas terek alakuljanak ki, nagy nyílászárókkal, jelentős üvegfelületekkel rendelkeznek.Levegő-víz rendszerű hőszivattyús hűtés-fűtés rendszerrel kerülnek beépítésre, amelyhez külön geo-tarifás mérőórát biztosít az áramszolgáltató, így az elektromos energia ára 20-30% kedvezőbb az általános lakossági tarifáknál. A fejlesztésünk során elkészül a ház felújítása is, amely érinti a külső-belső homlokzatokat, nyílászárókat, az elektromos hálózatot, a közmű-bekötéseket. Az épületbe modern lift kerül beépítésre.A két világháború között, a ’20-as években épült nagypolgári épület a Jókai - Dessewffy utca sarkán található, a nyüzsgő budapesti belváros szívében, a Liszt Ferenc tér közvetlen közelében, egy háztömbnyire a Teréz körúttól, a VI. kerületi Bajcsy-Zsilinszky - Andrássy út - Teréz körút által határolt Belső-Terézváros legfrekventáltabb részén. Az épület Budapest egyik leginkább városias-belvárosias szövetének része, ennek megfelelően a környéken, mind a kereskedelem, mind a szórakozási-kulturális lehetőségek, mind az oktatás intézmények szinte minden spektruma rövid sétatávolságon belül megtalálható. Tömegközlekedési eszközökkel is jól megközelíthető, a pesti városrész nevezetességei (Opera, Bazilika), és méltán egyre népszerűbb szórakozóhelyei, éttermei, romkocsmái, akár gyalog is elérhetőek. A közelben jár a 4-es 6-os villamos, de a 3-as metró Nyugati téri állomásához, és az Oktogonnál lévő 1-es metróhelyéhez is néhány perces sétával el lehet jutni.

További adatok

Telekterület: -
Kert mérete: -
Erkély mérete: 26 m2
Felszereltség: -
Parkolás: -
Kilátás: utcai
Egyéb extrák:  
-

Hirdető adatai

Hirdető neve: Otthon Centrum
Kapcsolattartó: Dr. Oláh Mária
Hirdető telefonszáma: +36 70 461 9491
Honlap: -

Üzenetet küldhet a hirdetőnek:
Az Ön neve:
Az Ön e-mail címe:
Üzenet: