Pest megye, Budakeszi


 

Hivatkozási szám: 3110154

Ingatlan adatai

Irányár: 91 900 000 Ft
Típus: lakás (tégla)
Kategória: eladó
Alapterület: 174 m2
Fűtés: gáz (cirko)
Állapota: -
Szobák száma: 4
Építés éve: 2013
Szintek száma: -

Részletes leírás

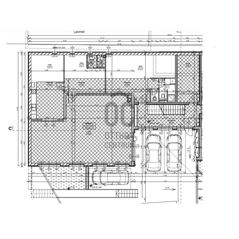
Budakeszi központban csak egy lépésre a kék busztól és boltoktól, eladó egy biztonságos zárt belső udvarból megközelíthető nettó 174 nm nagyságú lakás befejezés előtti állapotban. A lakás jelenleg egy nagyobb és egy kisebb lakóegységként üzeme, szerkezete megengedi, hogy a falakat is igény szerint helyezzük el saját igény szerint. A közművek duplán állnak rendelkezésre, mindenből kettő van. Az ingatlanhoz tartozik egy saját kert valamint három felszíni gépkocsi beálló.Tulajdoni lap szerint tároló külön helyrajzi számon nyilvántartva.További információért várom szíves hívását !

További adatok

Telekterület: -
Kert mérete: -
Erkély mérete: -
Felszereltség: -
Parkolás: -
Kilátás: udvari
Egyéb extrák:  
-

Hirdető adatai

Hirdető neve: Otthon Centrum
Kapcsolattartó: Bóka Balázs
Hirdető telefonszáma: +36 70 461 9816
Honlap: -

Üzenetet küldhet a hirdetőnek:
Az Ön neve:
Az Ön e-mail címe:
Üzenet: