Pest megye, Isaszeg


 

Hivatkozási szám: 3101237

Ingatlan adatai

Irányár: 135 000 000 Ft
Típus: ház
Kategória: eladó
Alapterület: 229 m2
Fűtés: gáz (cirko)
Állapota: új
Szobák száma: 4
Építés éve: 2024
Szintek száma: -

Részletes leírás

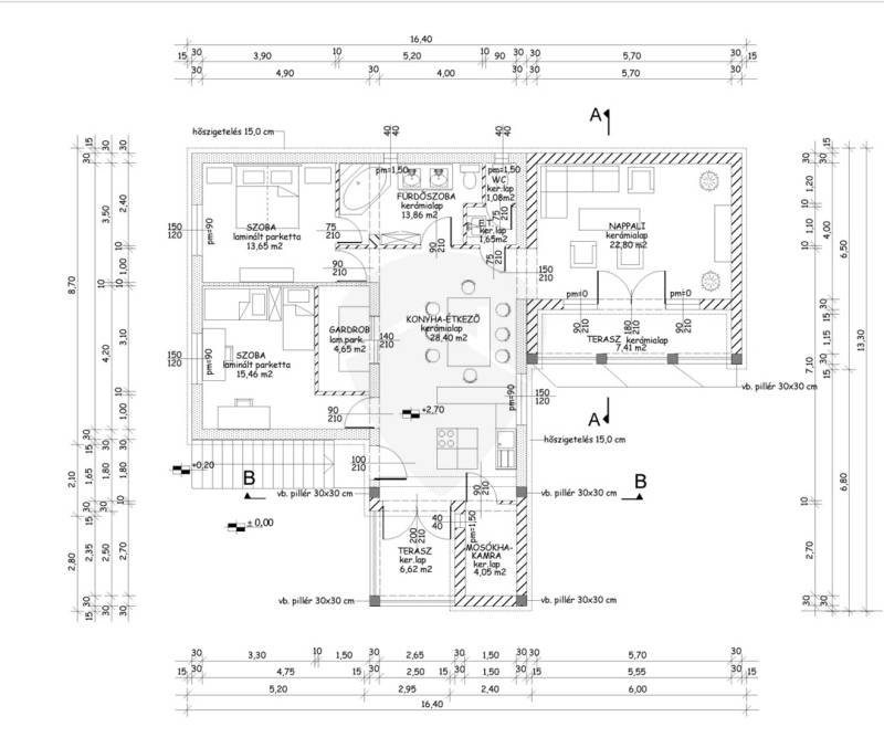
Eladásra kínálok Isaszeg központjában egy teljes mértékben felújított \"palotát\"!Az ingatlan belső kialakítása modern és praktikus, 4 szobával és 3 fürdőszobával rendelkezik kettő szinten! Akár kétgenerációs lakóingatlan is kialakítható, jelenleg a tervrajzok kissé eltérnek az eredeti állapotól, mivel a lenti szinten üzlethelyiség kerül kialakításra, de ez könnyen akár lakás is lehet. A rajzok módósítása a héten megtörténik.Az ingatlan 2023/24-ben került teljes felújításra és bővítésre, amelyre a hivatalos engedélyek is rendelkezésre állnak. Az ingatlan lokációja kiváló, a környék csendes és biztonságos. Az autóval közlekedőknek fontos információ lehet, hogy könnyen megközelíthető az M0-es autóút így Budapest is könnyen elérhető. A tömegközlekedési lehetőségek is kiválóak, a városközpont és a főbb vonat- és buszmegállók is könnyen megközelíthetőek.A környék adottságai szintén előnyösek, a közelben találhatóak boltok, iskolák és óvodák, valamint gyönyörű parkok és sportolási lehetőségek is. Az ingatlan állapota kiváló, felújított és modern, a fűtés gáz (cirkó), a lakás bútorozatlan. Lehetőség van a burkolatlan területek burkolására is saját igény szerint.Ha bármilyen kérdése merülne fel az ingatlannal kapcsolatban, kérjük, ne habozzon felvenni velünk a kapcsolatot. Ügyfeleink bizalmával és elégedettségével foglalkozunk, így garantáljuk, hogy minden kérdésére választ adunk.

További adatok

Telekterület: 574 m2
Kert mérete: 574 m2
Erkély mérete: -
Felszereltség: -
Parkolás: -
Kilátás: panorámás
Egyéb extrák:  
-

Hirdető adatai

Hirdető neve: Intor Ingatlan Powered By RH
Kapcsolattartó: Kollár Ábel Gergő
Hirdető telefonszáma: +36 70 412 5808
Honlap: -

Üzenetet küldhet a hirdetőnek:
Az Ön neve:
Az Ön e-mail címe:
Üzenet: